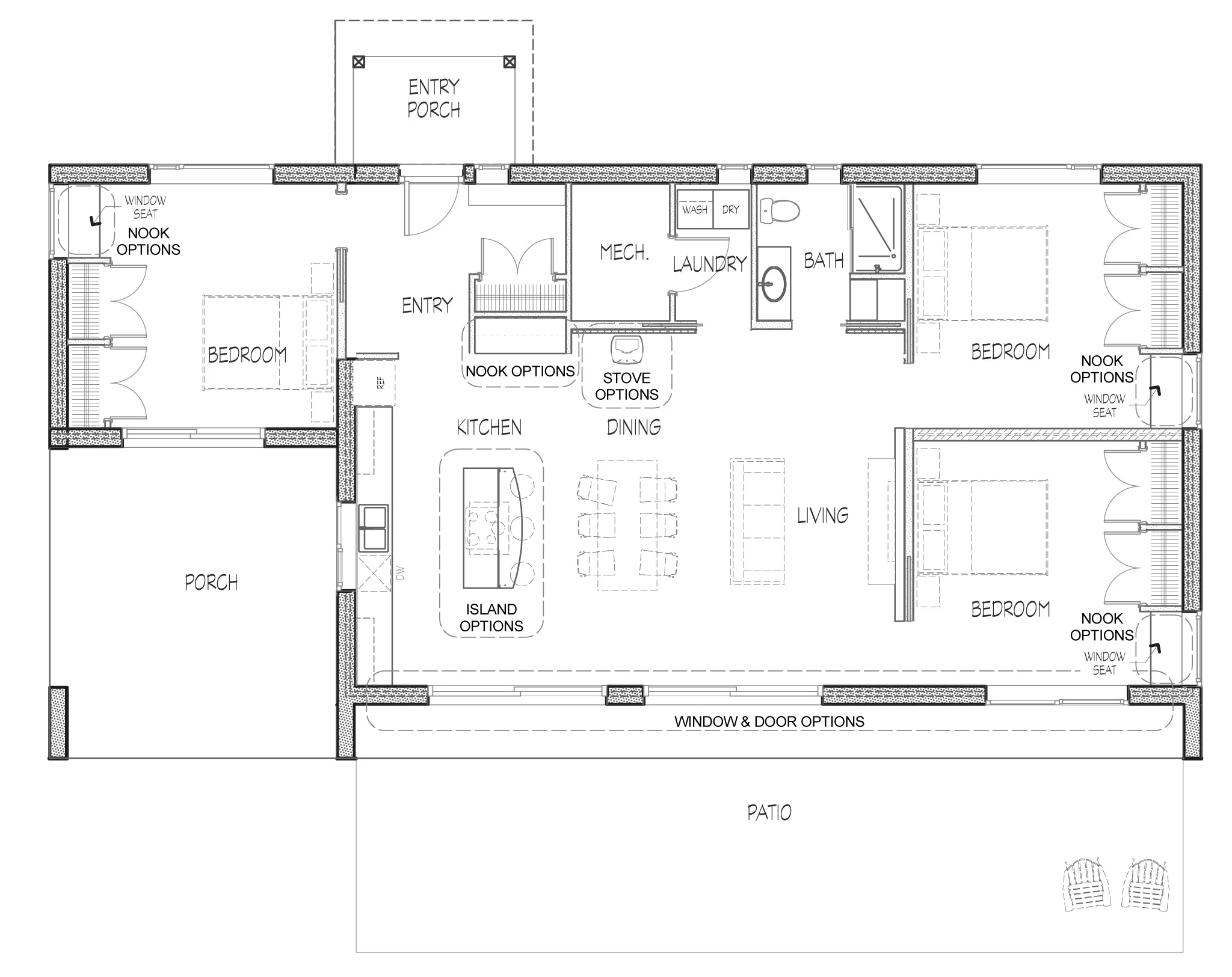
3 Bedroom 1 Bath (1640 SF)
Concept D5 - Low Pitch
Floor Plans
Architectural design by Eco+Plan Design LLC
